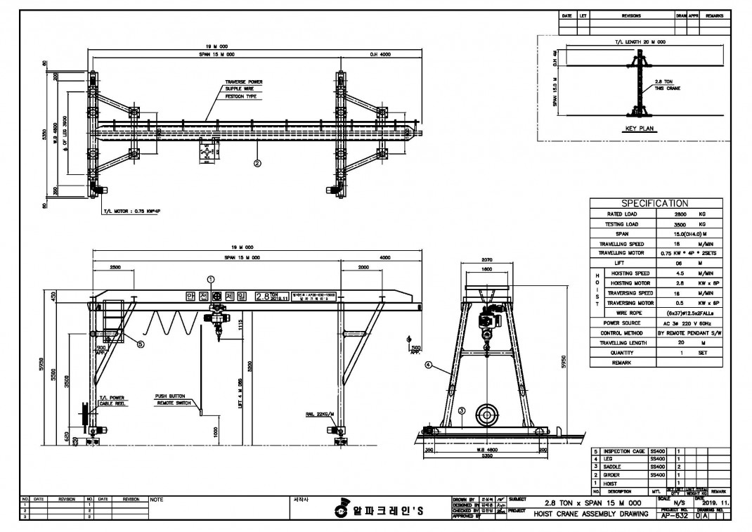
캔트리크레인 S-TYPE (GANTRY CRANE) > 호이스트 크레인 설계 및 인증대행

호이스트 크레인 설계 및 인증대행

홈 > 제품안내 > 호이스트 크레인 설계 및 인증대행

캔트리크레인 캔트리크레인 S-TYPE (GANTRY CRANE)

페이지 정보

작성자 관리자 댓글 0건 조회 1,245회 작성일 20-02-24 09:49

본문

레일위에 주행할수 있는 다리(LEG)를 양쪽에 가진 구조이며 다리상부에 HOIST가 장착된 CRAIN을 설치한 형태.

SINGLE TYPE : GIRDER의 구조가 I-BEAM 혹은 I-BEAM과 CV형 박스가 결합된 형태.(주로 저용량, 짧은 SPAN에 설치)

댓글목록

등록된 댓글이 없습니다.

경기도 김포시 양촌읍 황금로258번길 57 (학운리 1444)
Tel : 031-997-4650 | Fax : 031-998-4652 | Email : woolee4650@naver.com

Copyright ⓒ 알파콘트롤 All rights reserved.

관리자로그인 현대이지웹 바로가기